Return to properties

Apartment From 5.5 rooms, Bulle, Fribourg

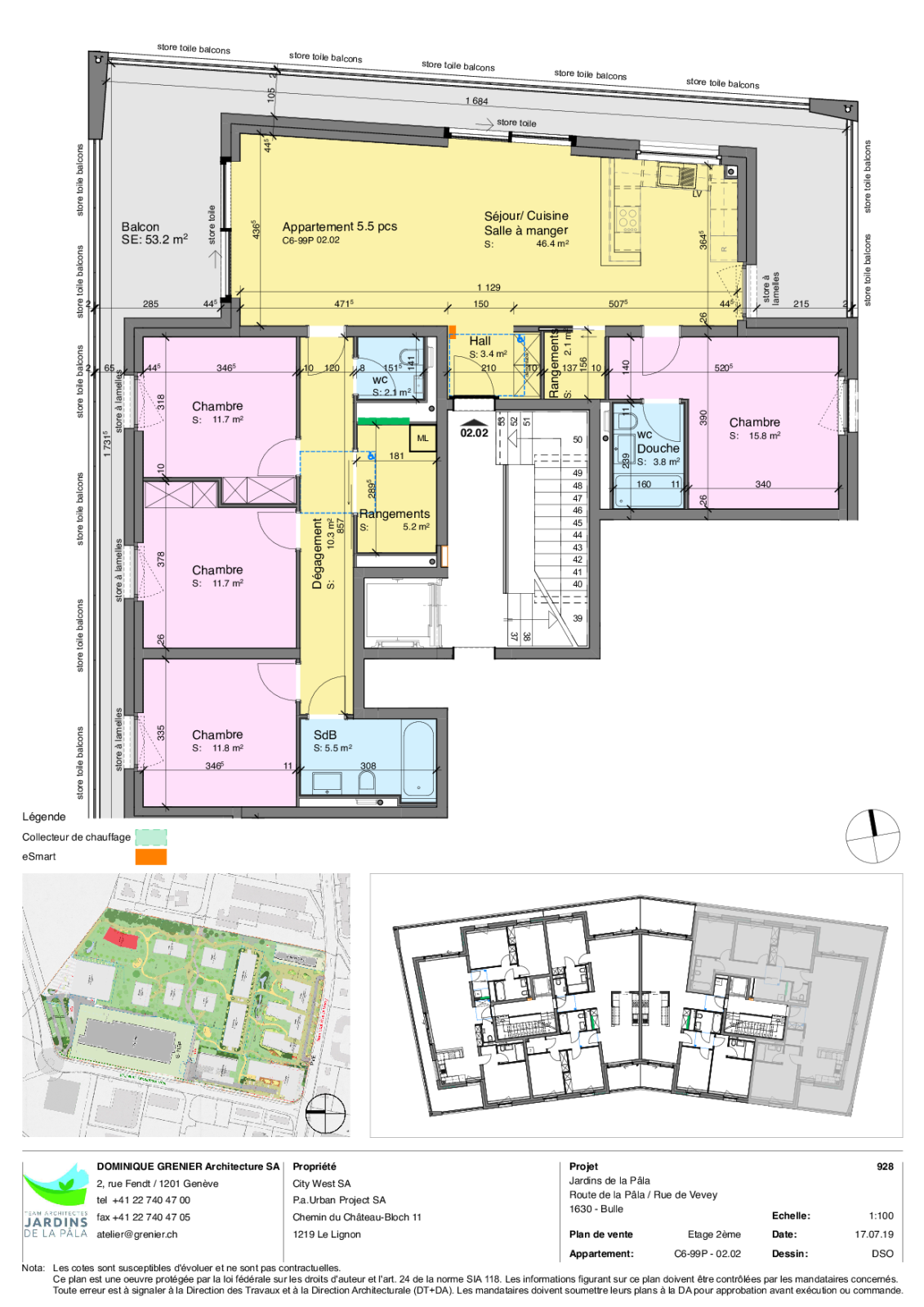
Exclusive: last 5.5 room apartment on the 2nd floor

Réf 42971

5.5 rooms

4 Bedrooms

2 Bathroom(s)

150

The marketing of the promotion of the Pâla district in Bulle is ending. This 5.5 room apartment is the last available in this superb promotion in a quiet area, close to all amenities and means of transport. It is composed of a large living room with well-equipped kitchen, a large master bedroom with its bathroom, a guest toilet, a bathroom, 3 other bedrooms with cupboards and a large laundry room. A beautiful terrace and passageway complete this property.
The +:
- eSMART® home automation, high-speed fiber
- Geothermal heating
- Large balcony
- Large bay windows, brightness
- Quality finishes

Modern architecture, soft mobility, gardens, peace and quiet make this district the new center of Bulle.
Don’t delay in coming to visit it!

Property characteristics

Type :

Apartment

Room(s) :

5.5

Floor :

2

Bedroom(s) :

4

Bathrooms and shower :

2

Balconies :

Yes

Parking space(s) :

Yes

Living area :

150.3 m²

Availability :

Sur demande

Orientation :

South East

Property location

OTHER PROPERTIES NEARBY

8-room property in the heart of Gruyère

Share

House/Villa

LES SCIERNES-D'ALBEUVE

CHF 2'200'000.-

8.0 rooms

6 Bedrooms

438 m²

Un voyage dans le temps au coeur d’un domaine historique !
Objet rare

Share

House/Villa

MONTAGNY-LA-VILLE

Price upon request

16.0 rooms

14 Bedrooms

691 m²

3.5 room apartment in La Verrerie, Haute-Veveyse
Exclusivité

360 ° visit

Share

Apartment

LA VERRERIE

CHF 649'000.-

3.5 rooms

2 Bedrooms

106 m²

Discover BARNES magazine