Return to properties

Apartment From 3.5 rooms, Bulle, Fribourg

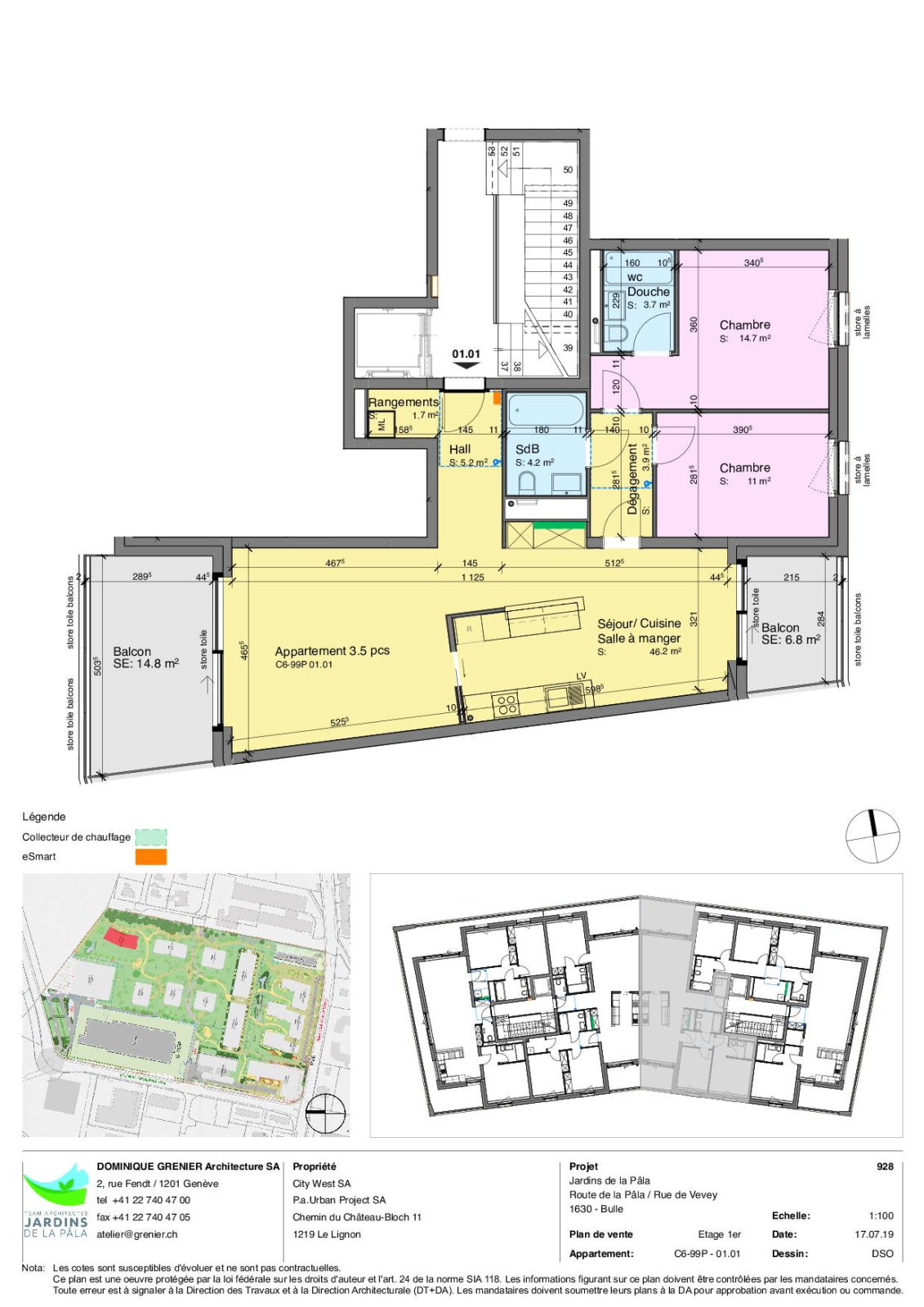
LES JARDINS DE LA PÂLA - "Alapge" C6-99 - Lot 01.01 - 3.5 room apartment on the 1st floor

Réf 42978

3.5 rooms

2 Bedrooms

2 Bathroom(s)

100

BARNES SUISSE SA offers you:

Condominium apartments for sale from 2.5 rooms to 5.5 rooms from CHF 335,000.-. For more information and to find out which lots are still available, do not hesitate to contact us.

“Your well-being is at the center”

The Pâla district in Bulle is in the final phase of construction and the first apartments have already been delivered. They all benefit from:

- eSMART® home automation, high-speed fiber
- Geothermal heating
- Large balcony
- Large bay windows, brightness
- Quality finishes

Modern architecture, soft mobility, gardens, peace and quiet will make this upcoming district the new center of Bulle.

Property characteristics

Type :

Apartment

Floor :

1

Bedroom(s) :

2

Bathrooms and shower :

2

Balconies :

Yes

Parking space(s) :

Yes

Living area :

100 m²

Availability :

Sur demande

Orientation :

West

Property location

OTHER PROPERTIES NEARBY

8-room property in the heart of Gruyère

Share

House/Villa

LES SCIERNES-D'ALBEUVE

CHF 2'200'000.-

8.0 rooms

6 Bedrooms

438 m²

Un voyage dans le temps au coeur d’un domaine historique !
Objet rare

Share

House/Villa

MONTAGNY-LA-VILLE

Price upon request

16.0 rooms

14 Bedrooms

691 m²

3.5 room apartment in La Verrerie, Haute-Veveyse
Exclusivité

360 ° visit

Share

Apartment

LA VERRERIE

CHF 649'000.-

3.5 rooms

2 Bedrooms

106 m²

Discover BARNES magazine