Return to properties

Apartment From 4.5 rooms, Bulle, Fribourg

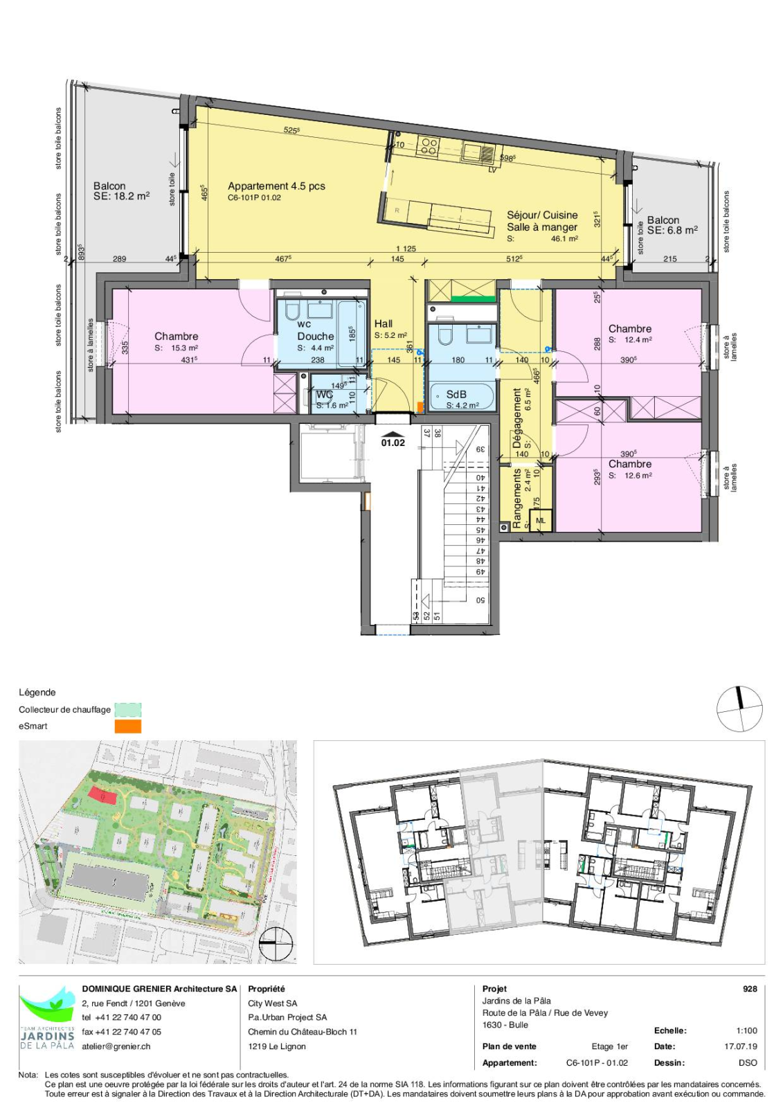
"Alpage" C6-101 - Lot 01.02 - 4.5 room apartment on the 1st floor

Réf 42986

4.5 rooms

3 Bedrooms

2 Bathroom(s)

130

Come and discover the latest building in a magnificent development with PPE apartments - Quartier de la Pâla in Bulle - L'Alpage is a luxury building in a beautiful wooded park.

The typologies vary according to your desires and needs, from 2.5 rooms to 5.5 rooms on 5 floors, offering you a superb view of the Gruyère capital.

The composition of the apartments will bring you large spaces with living areas ranging from 50 to 161 m². Enjoy very pleasant terraces.

The construction will be of superior quality with high-end materials and modern architecture.

The green outdoor setting will be perfect for anyone who loves greenery while enjoying the comfort of the city with all the amenities. Delivery last quarter 2020.

Property characteristics

Type :

Apartment

Floor :

1

Bedroom(s) :

3

Bathrooms and shower :

2

Balconies :

Yes

Parking space(s) :

Yes

Living area :

130.1 m²

Availability :

Sur demande

Orientation :

West

Property location

OTHER PROPERTIES NEARBY

8-room property in the heart of Gruyère

Share

House/Villa

LES SCIERNES-D'ALBEUVE

CHF 2'200'000.-

8.0 rooms

6 Bedrooms

438 m²

Un voyage dans le temps au coeur d’un domaine historique !
Objet rare

Share

House/Villa

MONTAGNY-LA-VILLE

Price upon request

16.0 rooms

14 Bedrooms

691 m²

3.5 room apartment in La Verrerie, Haute-Veveyse
Exclusivité

360 ° visit

Share

Apartment

LA VERRERIE

CHF 649'000.-

3.5 rooms

2 Bedrooms

106 m²

Discover BARNES magazine