Return to properties

House/Villa From 5.5 rooms, Gibloux, Fribourg

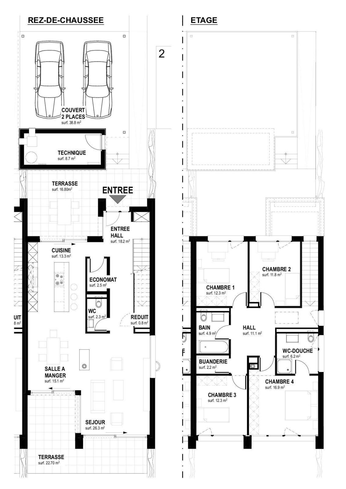
Villa E5 Promotion Les Prés de Farvagny

Réf 43150

5.5 rooms

4 Bedrooms

2 Bathroom(s)

156

Farvagny is a charming green village, part of the commune of Gibloux located in the Sarine district.

Due to its excellent geographical location, the commune of Gibloux offers a framework conducive to industrial development while preserving a natural site promoting the development of its population and while combining

the calm and charm of the countryside. Close to the city of Fribourg and its motorways. In fact, the village is only 25 minutes from Bern and

45 minutes from Lausanne.

This new promotion will delight families, couples or anyone wishing to have a good quality of life.

Located in an idyllic region, the town of Gibloux is an excellent starting point for practicing many leisure activities. Thanks to its reception institutions, children have the privilege of being able to follow all their compulsory schooling (from nursery level to orientation cycle) within the school circle of the town. The village is served by the Fribourg public transport bus (TPF).

Farvagny also offers all the necessary amenities such as local shops, restaurants, banks, etc. Sports facilities, forest trails, walking routes, a library, allow everyone to occupy their leisure time. More than 20 societies animate the cultural and sporting life of the commune.

Each of the villas will be unique thanks to the finishes that are at the discretion of the buyers; however, the distribution of the rooms is similar in each lot.

The large and bright rooms will seduce you, the warm and cozy atmosphere of the future villa district will make you feel at home, the two beautiful terraces will allow you to enjoy optimal sunshine according to your desires, and finally, a 2-space carport completes each of the villas.

Property characteristics

Type :

House/Villa

Room(s) :

5.5

Bedroom(s) :

4

Bathrooms and shower :

2

Living area :

156.2 m²

Land size :

884 m²

Availability :

Sur demande

Property location

OTHER PROPERTIES NEARBY

8-room property in the heart of Gruyère

Share

House/Villa

LES SCIERNES-D'ALBEUVE

CHF 2'200'000.-

8.0 rooms

6 Bedrooms

438 m²

Un voyage dans le temps au coeur d’un domaine historique !
Objet rare

Share

House/Villa

MONTAGNY-LA-VILLE

Price upon request

16.0 rooms

14 Bedrooms

691 m²

3.5 room apartment in La Verrerie, Haute-Veveyse
Exclusivité

360 ° visit

Share

Apartment

LA VERRERIE

CHF 649'000.-

3.5 rooms

2 Bedrooms

106 m²

Discover BARNES magazine