Return to properties

Apartment From 3.5 rooms, Epalinges, Vaud

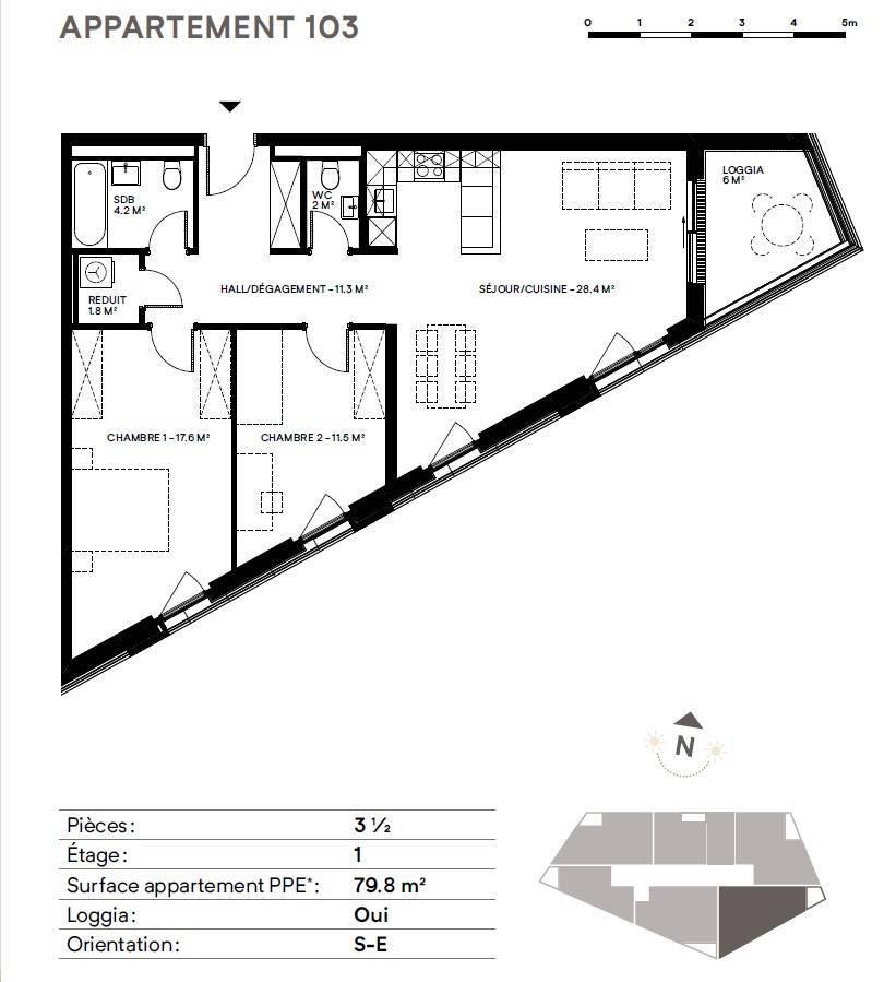
3.5 rooms located on the 1st floor - Lot No. 3

Réf 52262

3.5 rooms

2 Bedrooms

1 Bathroom

77

Don't hesitate any longer and find all the lots available on

https://www.grand-chemin.ch/gerofinance-dunand
Located in a green setting, a few minutes from the Lausanne Hotel School, public transport and motorways, the “Grand Chemin” promotion will meet all your expectations.
Composed of two buildings facing each other and complementing each other, the development includes elegant apartments offering a clear view to its future occupants and accommodates commercial activities on the other hand.

Underground parking for cars, bicycles and strollers, communal living areas with garden, private courtyard and playground are just some of the advantages of these buildings under construction.

The proposed apartment, facing South-East on the 1st floor, is arranged as follows:

- Entrance hall with wall cupboards
- Large living room with dining area
- Open plan kitchen
- Bedroom No. 1
- Bedroom No. 2
- Bathroom / toilet
- Visitors' toilets
- Reduced with space for washing column
- Balcony
Delivery of your future home, with a choice of finishes, is scheduled for May 2020. An indoor parking space is available in addition to the sale price (CHF 40,000).



Property characteristics

Type :

Apartment

Room(s) :

3.5

Floor :

1

Bedroom(s) :

2

Bathrooms and shower :

1

Parking space(s) :

Yes

Living area :

76.8 m²

Weighted surface :

79.8 m²

Availability :

Sur demande

Orientation :

South East

Property location

OTHER PROPERTIES NEARBY

Exceptional residence in the heart of Lausanne's beautiful districts
Exclusivité

Share

Video

House/Villa

LAUSANNE • Prestige

CHF 7'900'000.-

11.5 rooms

6 Bedrooms

450 m²

Fully renovated architect-designed property

Share

House/Villa

LA CROIX (LUTRY) • Prestige

CHF 6'800'000.-

11.0 rooms

8 Bedrooms

500 m²

340 m² mansion in the heart of nature.
Exclusivité

Share

House/Villa

SAVIGNY

CHF 3'300'000.-

9.5 rooms

6 Bedrooms

340 m²

Discover BARNES magazine