Return to properties

Apartment From 3.5 rooms, Epalinges, Vaud

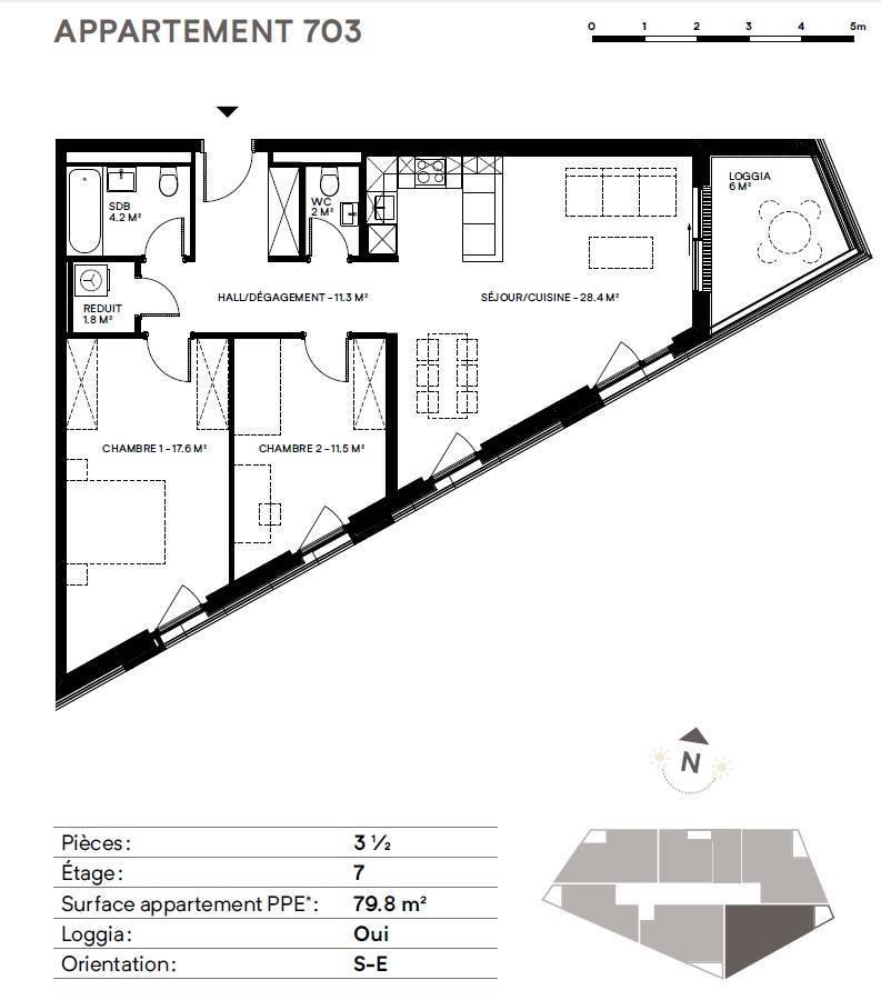
3.5 rooms located on the 7th floor - Lot No. 703

Réf 52288

3.5 rooms

2 Bedrooms

1 Bathroom

77

Located in a green setting, a few minutes from the Lausanne Hotel School, public transport and motorways, the “Grand Chemin” promotion will meet all your expectations.

Composed of two buildings facing each other and complementing each other, the development includes elegant apartments offering a clear view to its future occupants and accommodates commercial activities on the other hand.

Underground parking for cars, bicycles and strollers, communal living areas with garden, private courtyard and playground are just some of the advantages of these buildings under construction.

The proposed apartment, facing South-East on the 7th floor, is arranged as follows:

- Entrance hall with wall cupboards
- Large living room with dining area
- Open plan kitchen
- Bedroom No. 1
- Bedroom No. 2
- Bathroom / toilet
- Visitors' toilets
- Reduced with space for washing column
- Balcony
The delivery of your future home, with a choice of finishes, is scheduled for autumn 2019. An indoor parking space is available in addition to the sale price (CHF 40,000.-). Don't hesitate any longer and find all the available lots on www.grand-chemin.ch/gerofinance

Property characteristics

Type :

Apartment

Room(s) :

3.5

Floor :

7

Bedroom(s) :

2

Bathrooms and shower :

1

Balconies :

Yes

Parking space(s) :

Yes

Living area :

76.8 m²

Weighted surface :

79.8 m²

Availability :

Sur demande

Orientation :

South East

Property location

OTHER PROPERTIES NEARBY

Exceptional residence in the heart of Lausanne's beautiful districts
Exclusivité

Share

Video

House/Villa

LAUSANNE • Prestige

CHF 7'900'000.-

11.5 rooms

6 Bedrooms

450 m²

Fully renovated architect-designed property

Share

House/Villa

LA CROIX (LUTRY) • Prestige

CHF 6'800'000.-

11.0 rooms

8 Bedrooms

500 m²

340 m² mansion in the heart of nature.
Exclusivité

Share

House/Villa

SAVIGNY

CHF 3'300'000.-

9.5 rooms

6 Bedrooms

340 m²

Discover BARNES magazine