Return to properties

Apartment From 2.5 rooms, Cossonay, Vaud

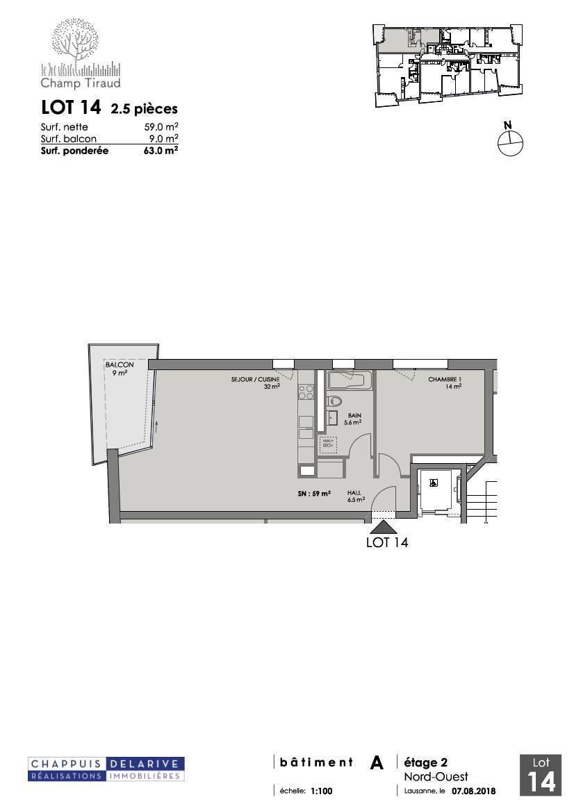
2.5 room apartment on the 2nd floor, Lot A14

Réf 52888

2.5 rooms

1 Bedroom

1 Bathroom

59

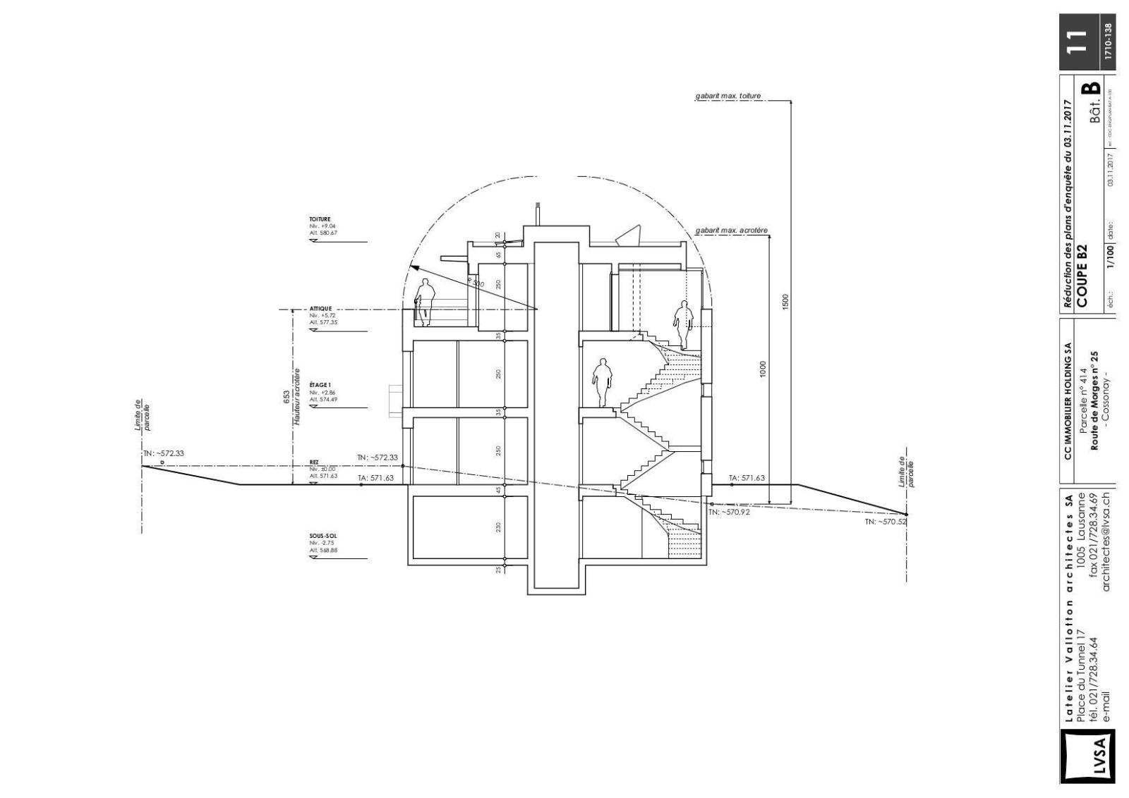
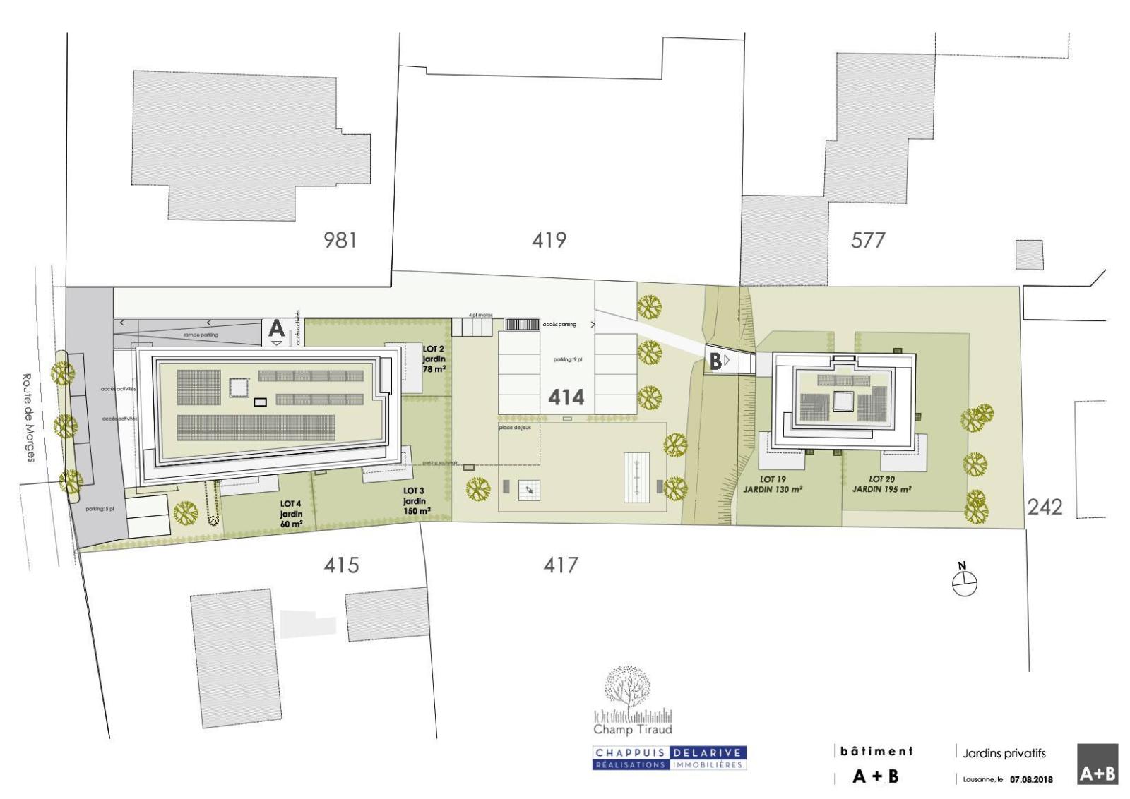
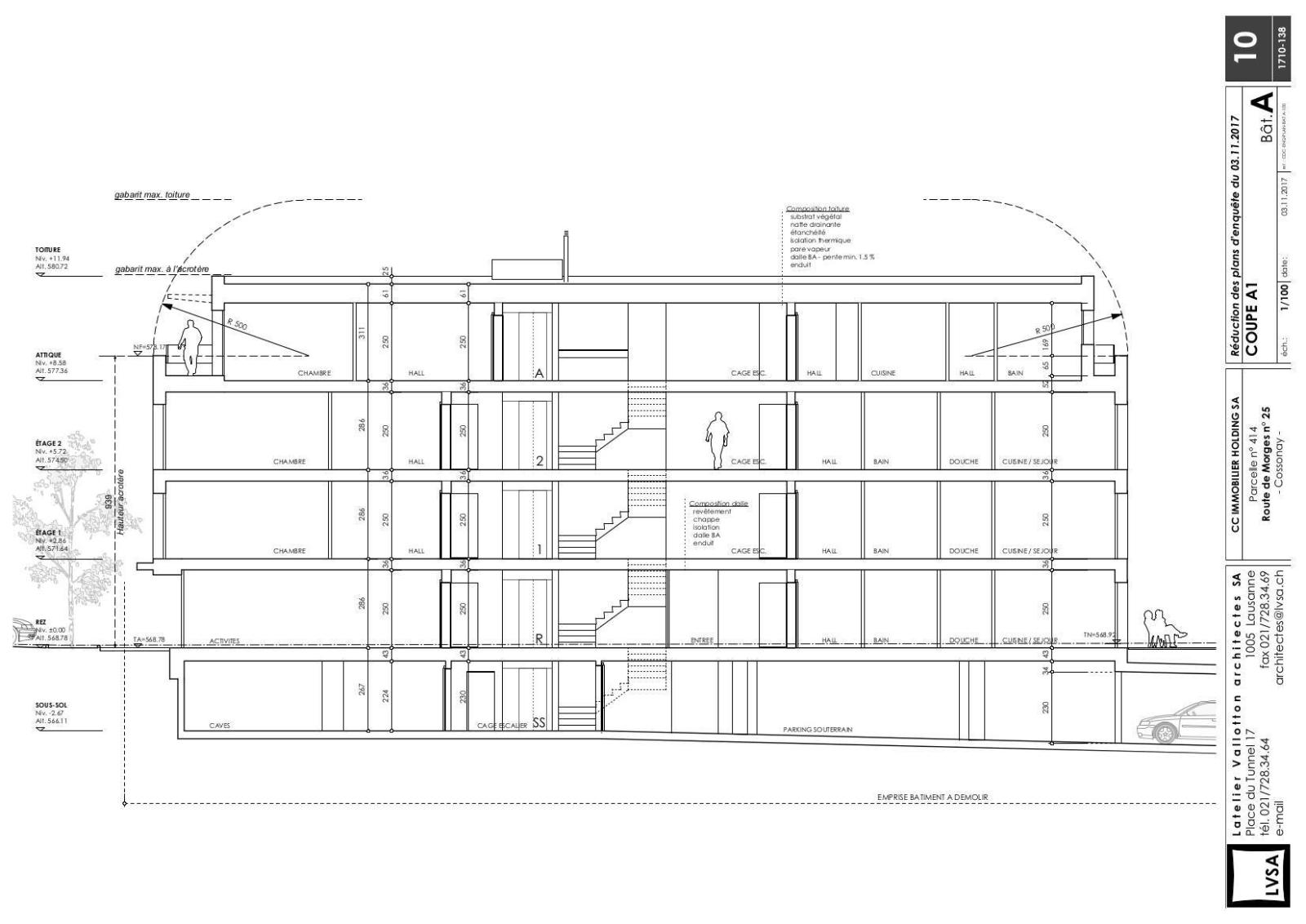
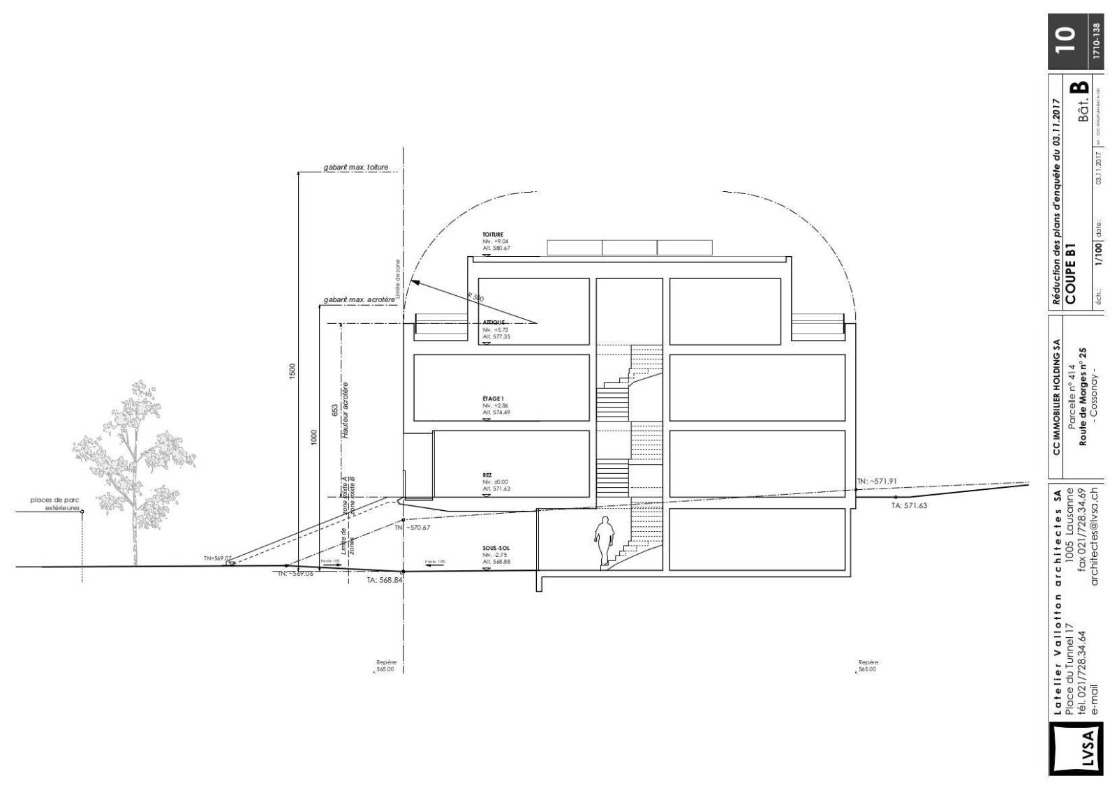
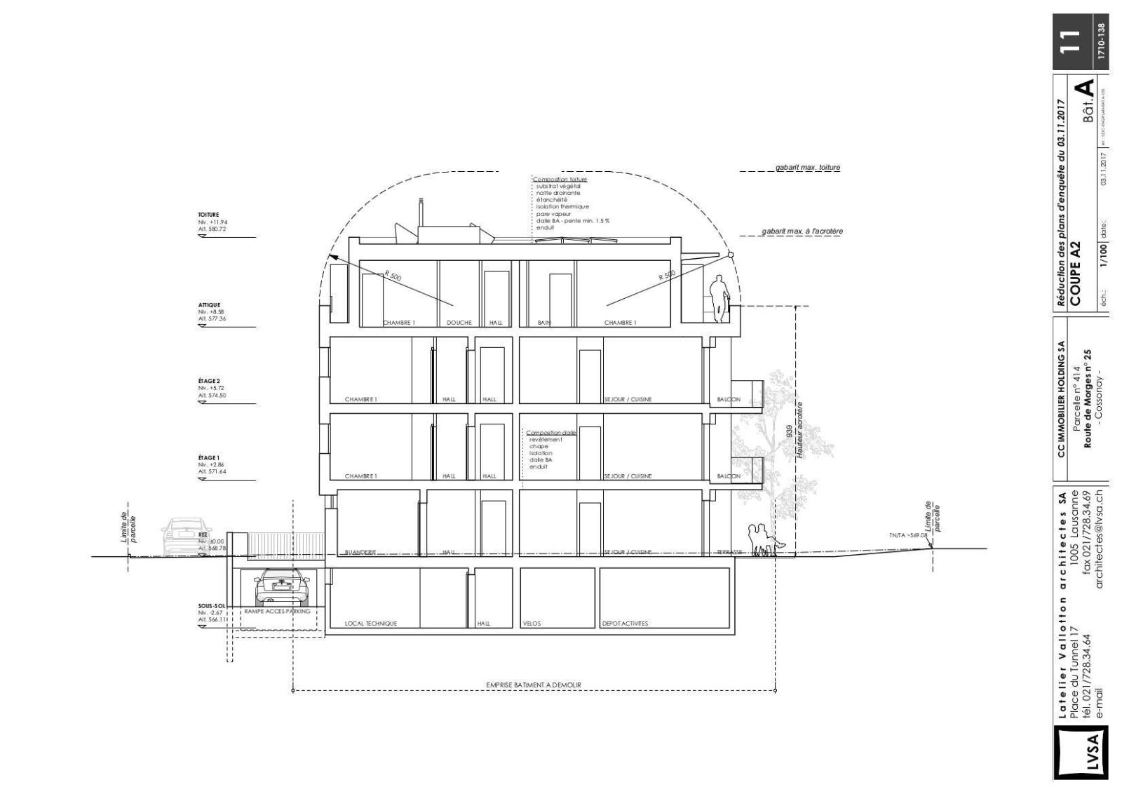
The plot, located near the city centre, has two zones, a mixed low density (B) and a medium density (A). As a result, the project presents two differentiated buildings, each adapted to each zone, the one furthest from the road, in mixed zone B, offers exclusively housing, while the other located in mixed zone A offers, in addition to housing, two areas intended for activities.

The project takes into account the orientations, visual clearances and constraints of the place to define the different typologies, which range from 2.5 to 4.5 rooms. All the apartments have balconies facing mainly to the South. Attics with large terraces crown each of the two buildings.
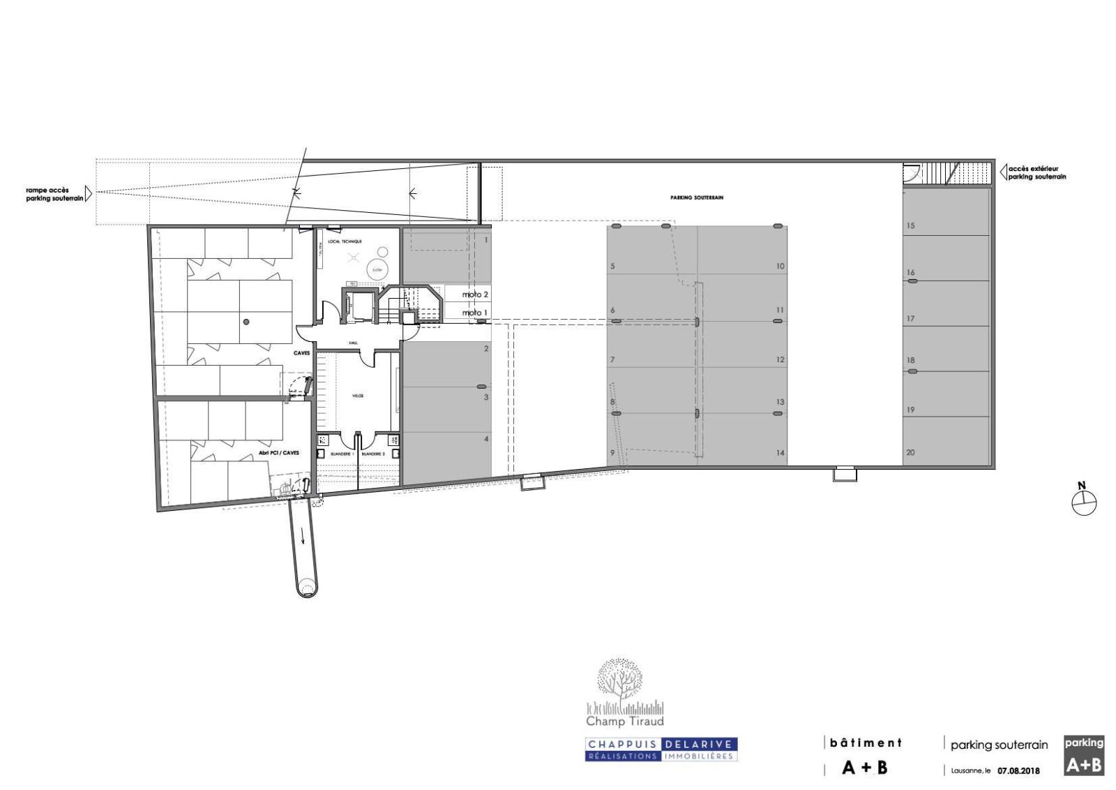
The underground car park is accessible directly from the basement of building A and by an external staircase for building B with additional outdoor parking spaces.

Green areas with trees and a playground liven up the space between the two buildings.

Green flat roofs integrate photovoltaic and thermal solar panels to ensure the production of electricity, heat and domestic hot water, which is part of a renewable energy approach. The choice of windows and facade materials acts passively in this direction.

The large bay windows in the living rooms and the choice of balcony balustrades provide a certain transparency and thus ensure good light.

The contemporary architecture of the complex is intended to be sober with contrasting color choices between the floors and the attics. The choice of materials, such as clean concrete, for the balconies and part of the activity areas blend harmoniously with the stainless steel railings and the texture of the fine render facades.

Particular care has been taken in the design of this set in order to combine aesthetics and functionality.

Property characteristics

Type :

Apartment

Room(s) :

2.5

Floor :

2

Bedroom(s) :

1

Bathrooms and shower :

1

Parking space(s) :

Yes

Living area :

59 m²

Weighted surface :

63 m²

Availability :

Sur demande

Orientation :

West

Property location

OTHER PROPERTIES NEARBY

15th century manor house located on 27,000 m²
Campagne

Share

House/Villa

SÉVERY • Prestige

Price upon request

13.0 rooms

7 Bedrooms

1300 m²

Atypical apartment with generous volumes

360 ° visit

Share

Apartment

MORGES

CHF 965'000.-

5.5 rooms

2 Bedrooms

334 m²

Magnificent renovated 19th century residence

Share

House/Villa

MONTRICHER

CHF 4'850'000.-

15.0 rooms

4 Bedrooms

800 m²

Discover BARNES magazine