Return to properties

Apartment From 5.5 rooms, Chardonne, Vaud

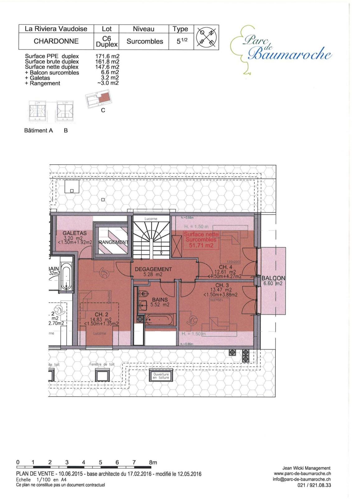
5.5 room duplex, lot C6, on the top floor

Réf 53603

5.5 rooms

4 Bedrooms

1 Bathroom

162

This 5.5 room duplex on the top floor of Residence "C" has a living area of 161.8 m². It benefits from a South-East orientation, with a balcony of 18.6 m² and another of 7 m².
Here is its interior distribution:
1st level:
- Magnificent clearance of 15 m²;
- A bedroom of 18 m² with adjoining bathroom/WC and washing column (washing machine/dryer); - A shower room/WC; - A fitted kitchen with central island and open to the living room; - A living room of approximately 37 m².
second level:
- A clearance of 5 m²;
- 3 bedrooms of approximately 13 m²; - A bathroom/WC; - A storage space of approximately 4 m².
The skylights provide optimum brightness.

A cellar of 8.6 m² and two indoor parking spaces at CHF 40,000.-/unit complete this property.

Property characteristics

Type :

Apartment

Room(s) :

5.5

Bedroom(s) :

4

Bathrooms and shower :

1

Balconies :

Yes

Parking space(s) :

Yes

Living area :

161.8 m²

Weighted surface :

171.6 m²

Availability :

Sur demande

Year of construction :

2016

Orientation :

South East

Property location

OTHER PROPERTIES NEARBY

Unique and Stunning 4.5-Room Duplex at the Marina

Share

Apartment

BOUVERET

CHF 895'000.-

4.5 rooms

3 Bedrooms

151.1 m²

5.5-Room Semi-Detached Villa with Panoramic View of the Lake and the Alps!

Share

House/Villa

BLONAY

CHF 1'590'000.-

5.5 rooms

3 Bedrooms

210 m²

House with 2 apartments, located in the heart of the village of Saint-Gingolph
Non resident authorised

Share

House/Villa

SAINT-GINGOLPH

CHF 1'350'000.-

6.5 rooms

4 Bedrooms

148 m²

Discover BARNES magazine