Return to properties

House/Villa From 6 rooms, Vandoeuvres, Genève

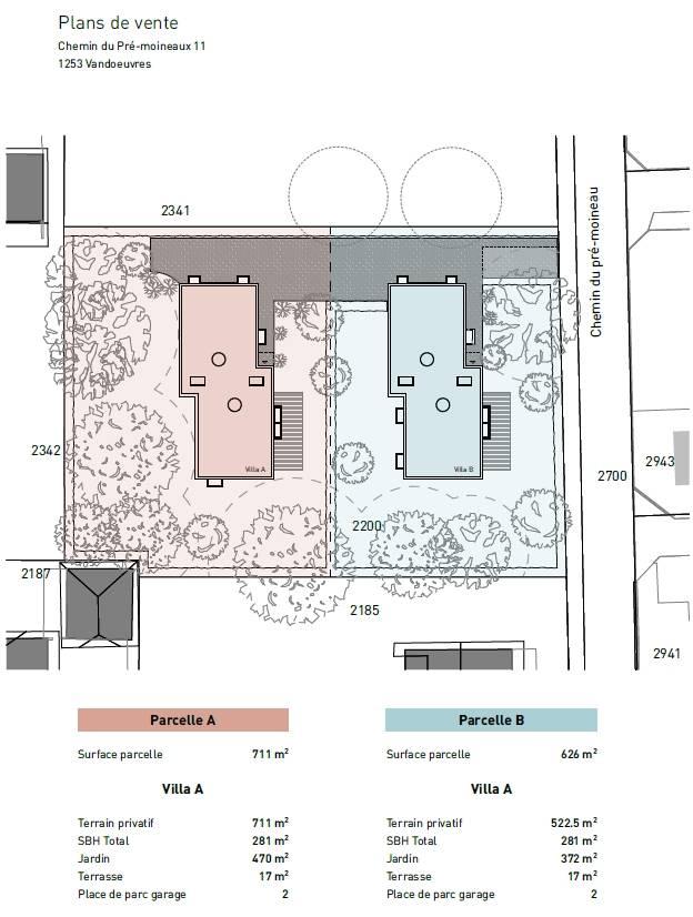
The Clos de Vandoeuvres - Villa B

Réf 56728

6.0 rooms

4 Bedrooms

2 Bathroom(s)

296 m²

This magnificent detached villa with contemporary lines offers more than 296 m2 of usable space spread over 3 levels. Located on a beautiful plot of 626 m2 in a quiet area, it will seduce you with its high-quality finishes, its brightness and its volumes.

The ground floor with a surface area of 90 m2 is composed as follows:
The entrance hall leads you directly to a large and bright living room of almost 45 m2.
Benefiting from a magnificent south-west orientation, your main living room has a kitchen open to the living room which benefits from optimal sunshine throughout the day.
The dining room is decorated with large bay windows creating a very warm atmosphere. The existence of a double height ceiling also allows light and greenery to penetrate into the heart of your villa on its 2 levels. Guest toilets with washbasins are also provided.

On one level, your terrace and the garden are directly accessible from the living room.

A staircase will take you to the upper floor. With a surface area of over 122 m2, it accommodates 4 large bedrooms, each with pleasant exposures as well as built-in cupboards.
You benefit from two large bathrooms, one is equipped with a shower with toilet, the second with a bathtub with toilet.

The basement offers nearly 84 m2 of usable space.
You will have a large room that can be used as a games room, cinema or fitness room, a large laundry room, two cellars with storage cupboards, as well as a technical room.

A garage for 2 cars ideally completes this set.

Property characteristics

Type :

House/Villa

Room(s) :

6

Bedroom(s) :

4

Bathrooms and shower :

2

Terraces :

Yes

Land size :

523 m²

Useful surface :

296 m²

Availability :

Sur demande

Year of construction :

2023

Orientation :

South West

Property location

OTHER PROPERTIES NEARBY

Charming house to renovate with lake view

Share

House/Villa

COLOGNY

CHF 9'500'000.-

8.0 rooms

3 Bedrooms

350 m²

Stunning loft with terraces and garden

Share

Apartment

TROINEX

CHF 2'690'000.-

6.0 rooms

4 Bedrooms

181 m²

Spacious 235 sqm penthouse duplex, fully renovated

Share

Apartment

BERNEX

CHF 2'150'000.-

9.0 rooms

5 Bedrooms

235 m²

Discover BARNES magazine