This magnificent gabled villa with contemporary lines offers more than 350 m² of usable space spread over 3 levels.
Located on a beautiful plot of 348 m² in a quiet area, it will seduce you with its high-quality finishes, its brightness and its volumes.
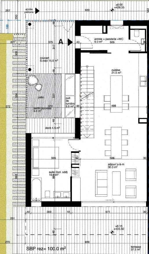
The ground floor, with a surface area of approximately 100 m², is composed of the following:
The entrance hall with wardrobe leads you to a large and bright fitted kitchen with central island.
The latter opens onto the living/dining room with the benefit of large bay windows facing south-west and offering optimal sunshine throughout the day.
On one level, your terrace and the garden are directly accessible from the living room. A bedroom with en-suite shower room is accessible from the living room and has direct access to the patio.
Visitor toilets with washbasins are also provided in the entrance.
A staircase benefiting from great natural light, thanks to the bay window on the patio, will lead you to the upper floor.
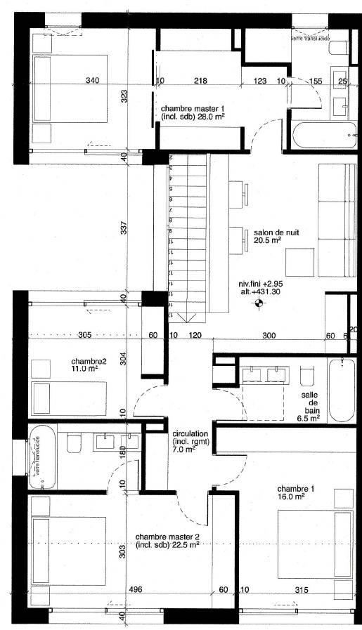
The first floor with a surface area of almost 140 m2 usable reception: A master suite with dressing room and adjoining bathroom/wc.
A suite with built-in wardrobes and with adjoining bathroom/WC. Two bedrooms with built-in wardrobes. A bathroom/WC with zenithal daylight.
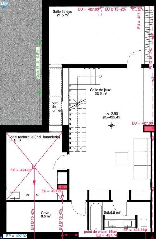
The basement of more than 110 m2 of usable space will have a natural light well:
A large games room with plenty of light. Large fitness room and bathroom/WC. A laundry room/technical room and a cellar complete the floor.
The exteriors: A covered terrace extended by a pleasant green garden, quiet and sheltered from view, as well as a patio with a private shelter and 2 outdoor parking spaces perfectly complete the ensemble.
Discover the website dedicated to the project: www.cedre-bleu.ch