Return to properties

Apartment From 2 rooms, Genève

EXCLUSIVE: Pleasant 2-room apartment near the city center

Réf 58059

2.0 rooms

44

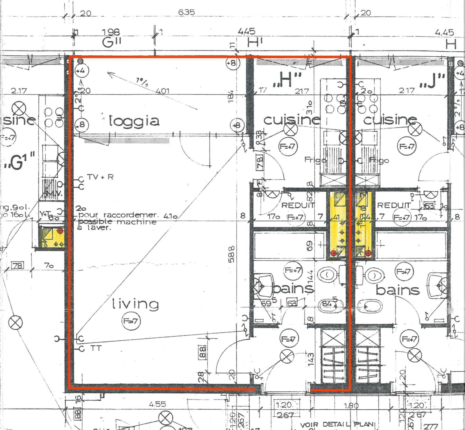
This pleasant 2-room apartment is located on the 1st floor of a well-maintained condominium in the Charmilles / Délices district.
The apartment has a PPE surface area of 43.7 m² and a loggia of 8.2 m².
It is distributed as follows:
- Entrance hall with cupboards
- Bathroom with WC (connection and possibility of installing a washing machine)
- Spacious living room
- Kitchen with storage room

A cellar completes this property.
The apartment requires renovation work.

Property characteristics

Type :

Apartment

Floor :

1

Living area :

43.7 m²

Availability :

Sur demande

Year of construction :

1973

Property location

OTHER PROPERTIES NEARBY

Charming house to renovate with lake view

Share

House/Villa

COLOGNY

CHF 9'500'000.-

8.0 rooms

3 Bedrooms

350 m²

Stunning loft with terraces and garden

Share

Apartment

TROINEX

CHF 2'690'000.-

6.0 rooms

4 Bedrooms

181 m²

Spacious 235 sqm penthouse duplex, fully renovated

Share

Apartment

BERNEX

CHF 2'150'000.-

9.0 rooms

5 Bedrooms

235 m²

Discover BARNES magazine